szkoła muzyczna
- typ projektu: kultura
- funkcja: kultura
- lokalizacja: Warszawa
- rok: 2015
- nagrody: II nagroda w konkursie
- powierzchnia: 6 000 m2
o projekcie
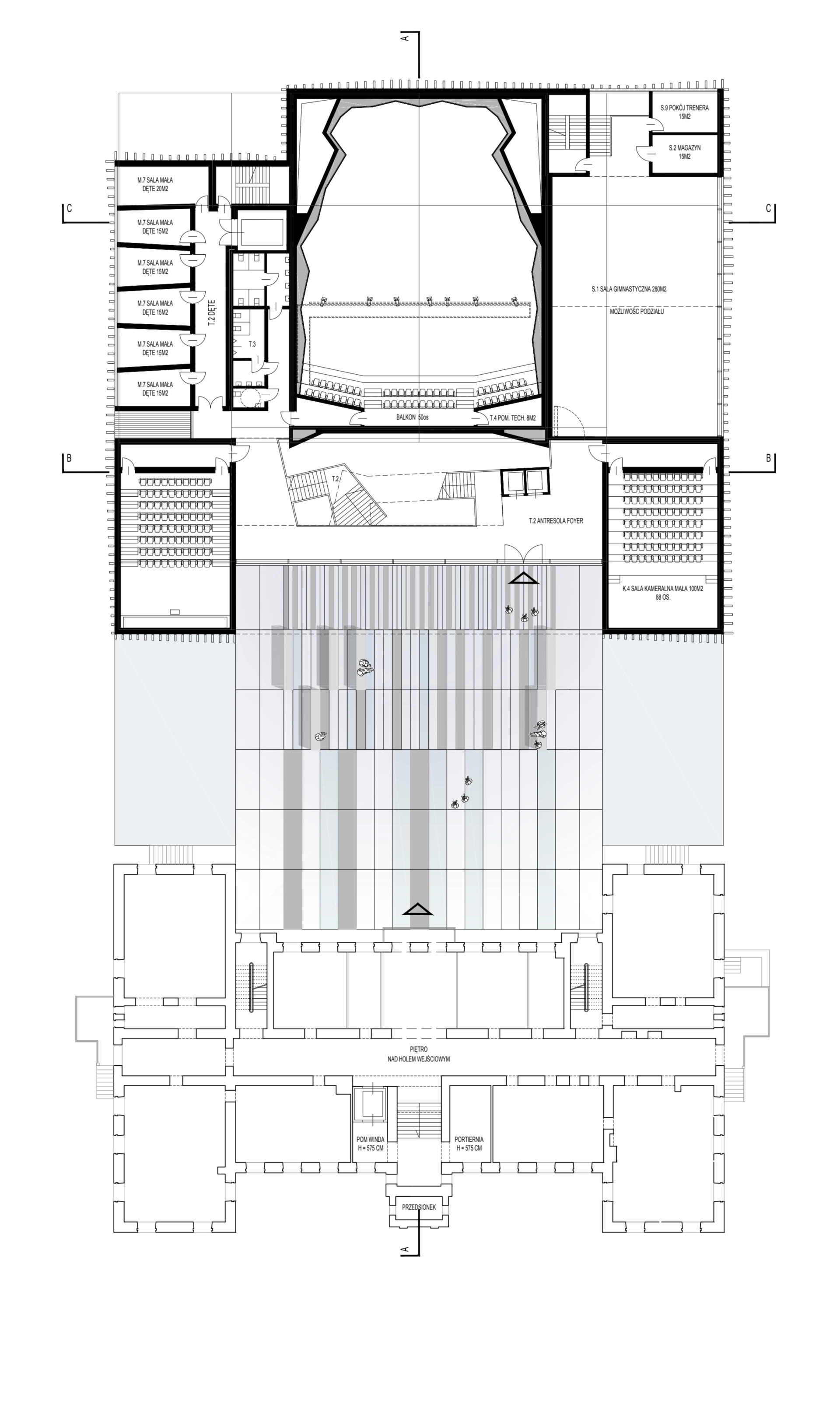
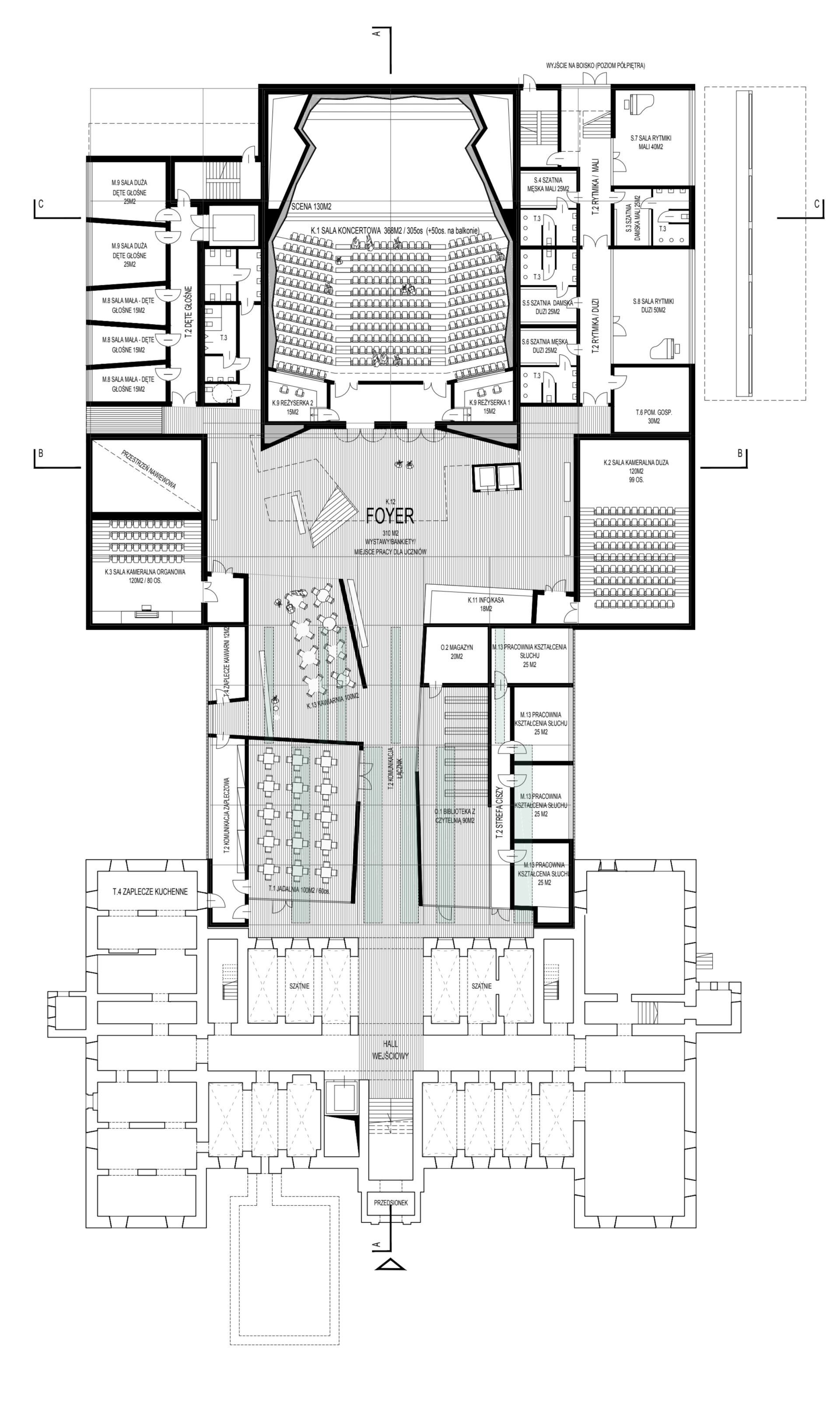
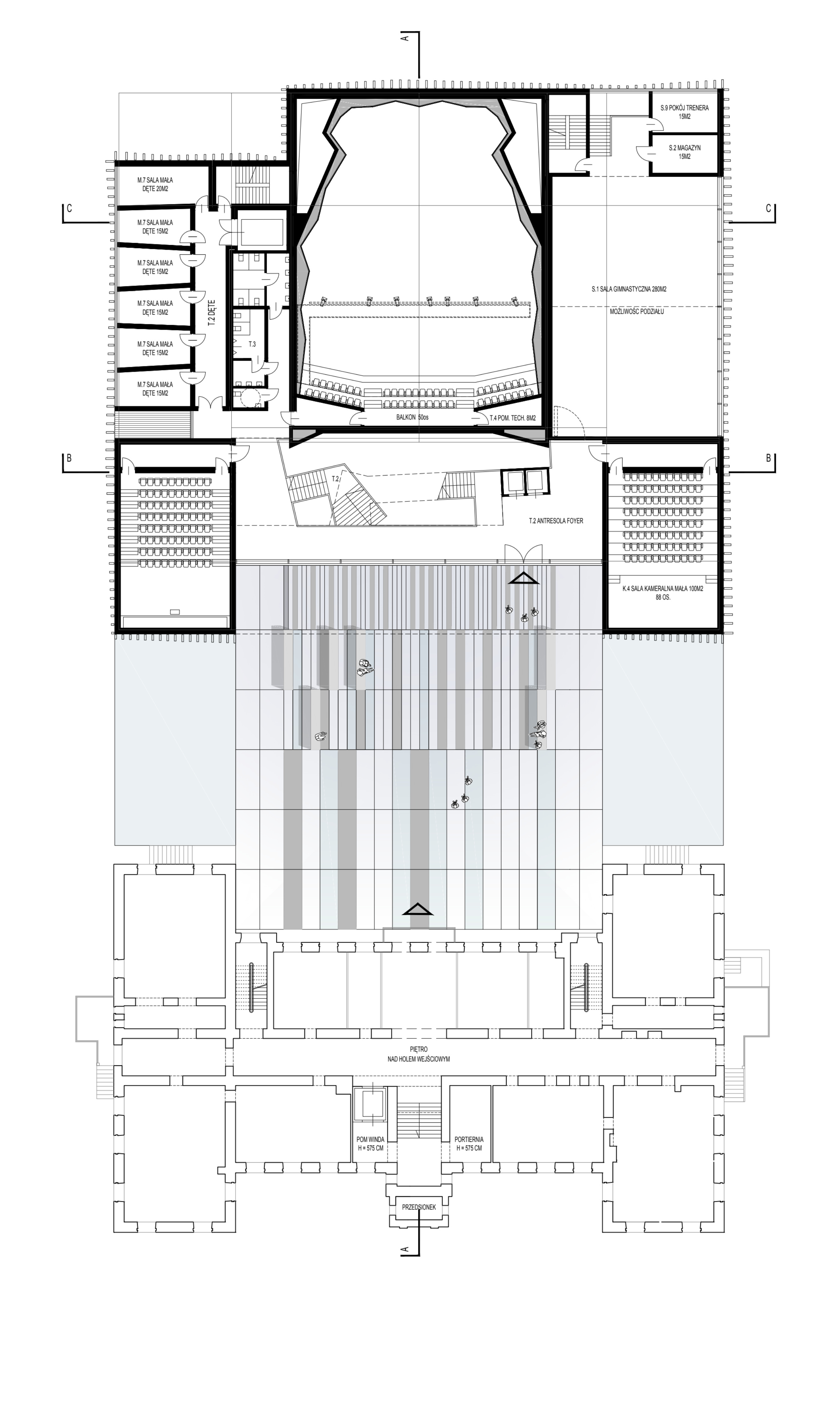
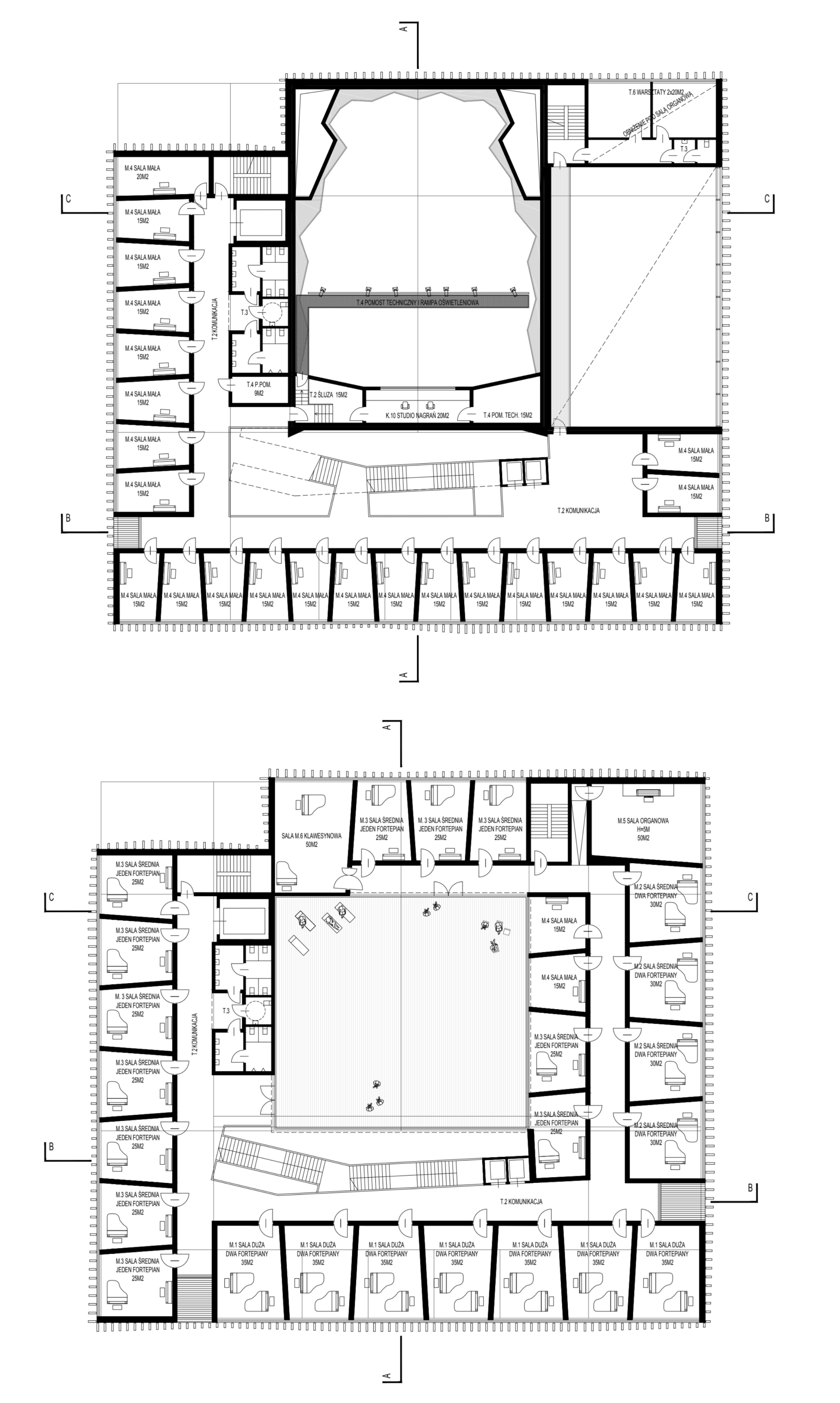
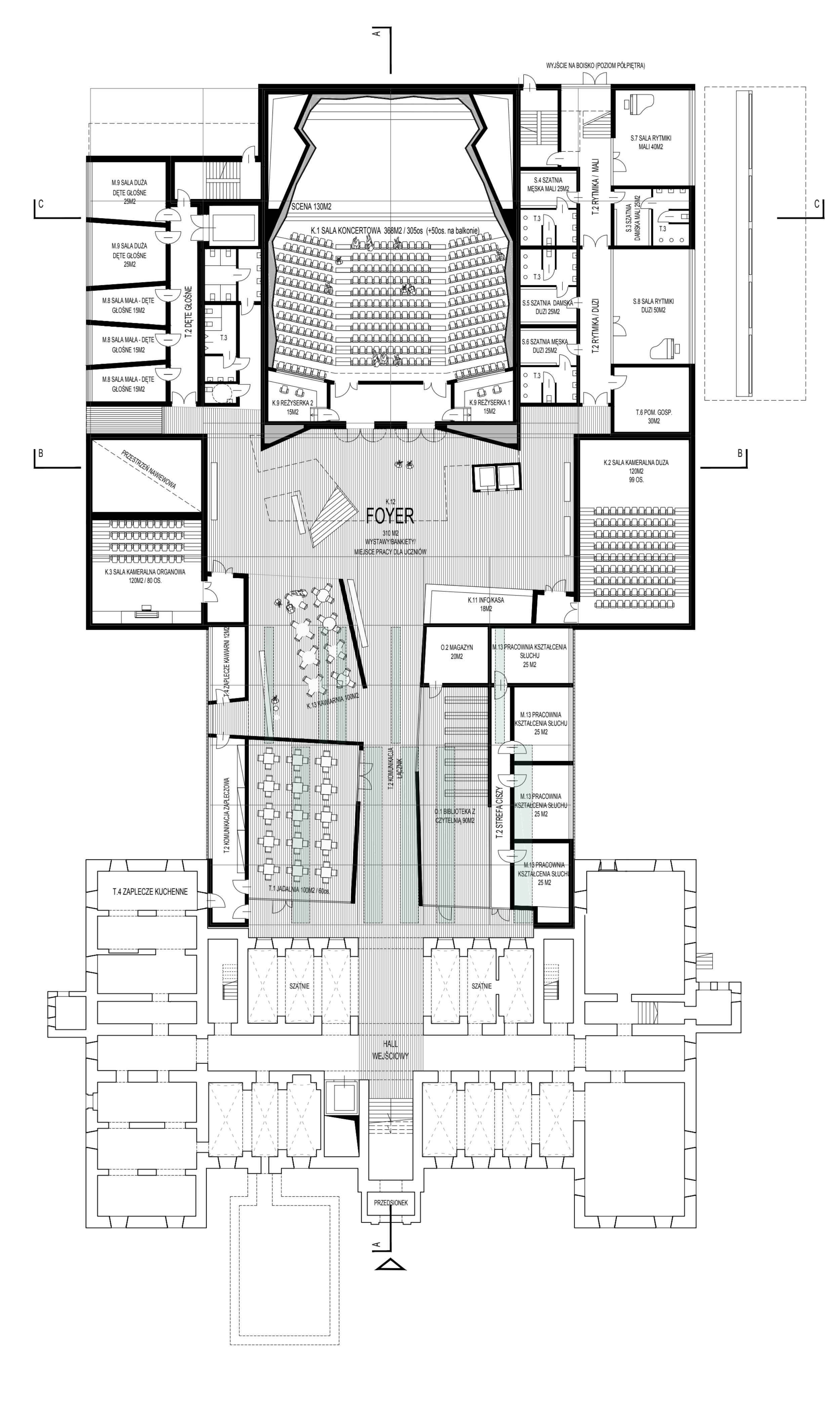
Nowy gmach Zespołu Szkół Muzycznych został zaprojektowany jako „nastrojony instrument” - współbrzmienie tradycji i nowoczesności. Urbanistycznie tworzy dialog z zabytkowym Domem Sierot przy Rakowieckiej, pozostając w osiowym układzie i zachowując szacunek dla historycznej kompozycji. Jasna, minimalistyczna bryła o rytmicznej elewacji z pionowych żaluzji kontrastuje z ceglaną strukturą sąsiedniego budynku, tworząc spójny konsonans form i barw.
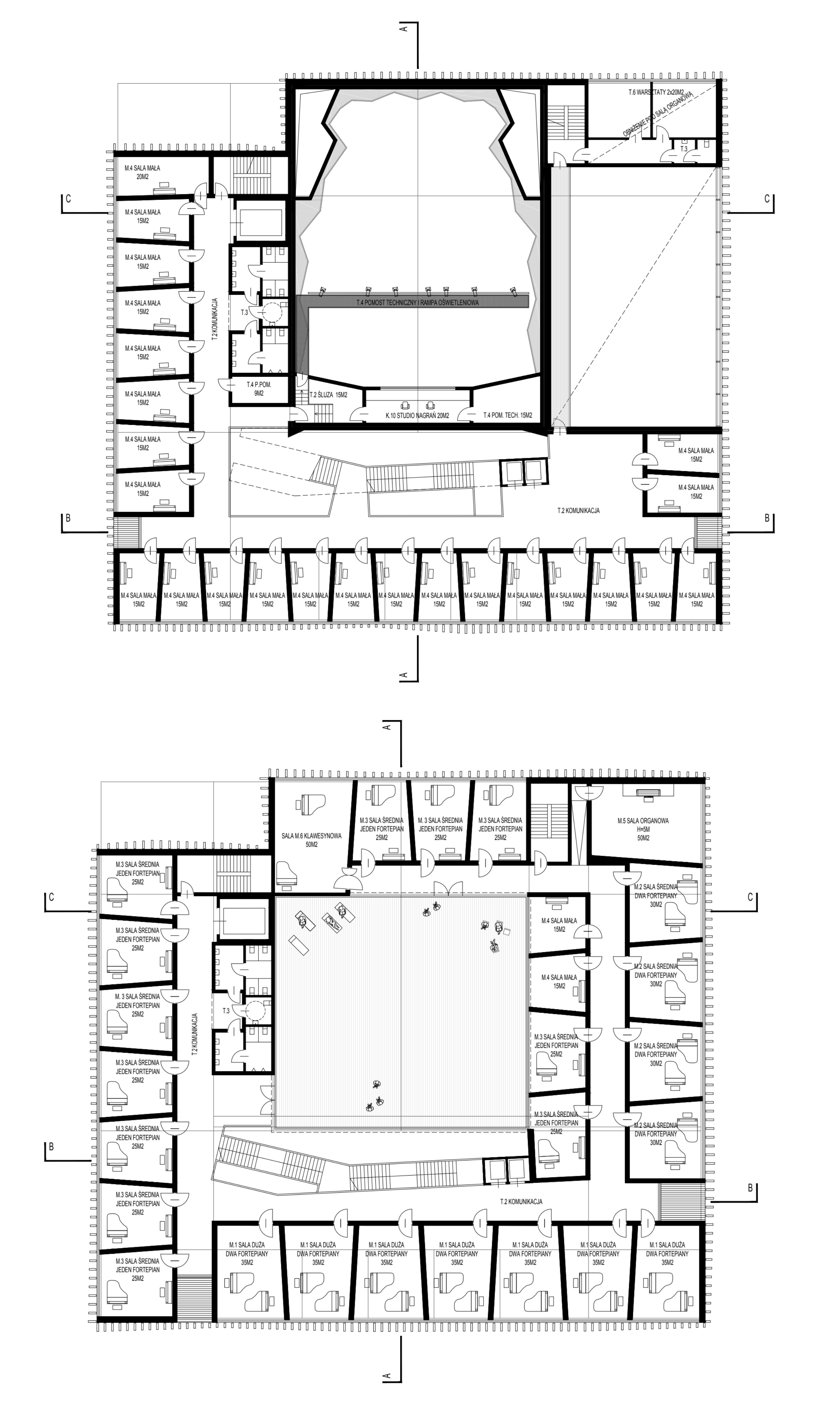
Wnętrza cechuje asceza materiałów - beton, szkło i jasne drewno budują przestrzeń o klarownym rytmie i doskonałej akustyce. Centralne foyer, otwarte na kondygnacje, pełni rolę łącznika i miejsca spotkań uczniów oraz gości.
Główna sala koncertowa w układzie „shoe-box” to serce obiektu - akustycznie precyzyjne „pudełko w pudełku” z 355 miejscami. Uzupełniają ją mniejsze sale kameralne i organowa, zapewniające elastyczność funkcjonalną oraz zróżnicowane warunki akustyczne.
Całość dopełnia prywatne patio na najwyższym poziomie - przestrzeń relaksu i wyciszenia dla uczniów szkoły.
szkoła muzyczna
Muzyka… mogłaby do pewnego stopnia istnieć, gdyby nawet nie było w ogóle świata.
adres:
chłopickiego 7/9 lok.62
04-314 warszawa
polska
kontakt:
+48 22 879 93 05 wew. 101
biuro@plus3architekci.pl
nip: 113-21-69-794
nieustannie poszukujemy osób twórczych i chcących do nas dołączyć,
zainteresowanych zapraszamy do kontaktu:
praca@plus3architekci.pl