
akademia muzyczna
- typ projektu: użyteczność publiczna
- funkcja: edukacja
- lokalizacja: kraków
- rok: 2022
- inwestor: akademia muzyczna im.Krzysztofa Pendereckiego
- konkursy: SARP 2022
- powierzchnia: 22 000 m2
o projekcie
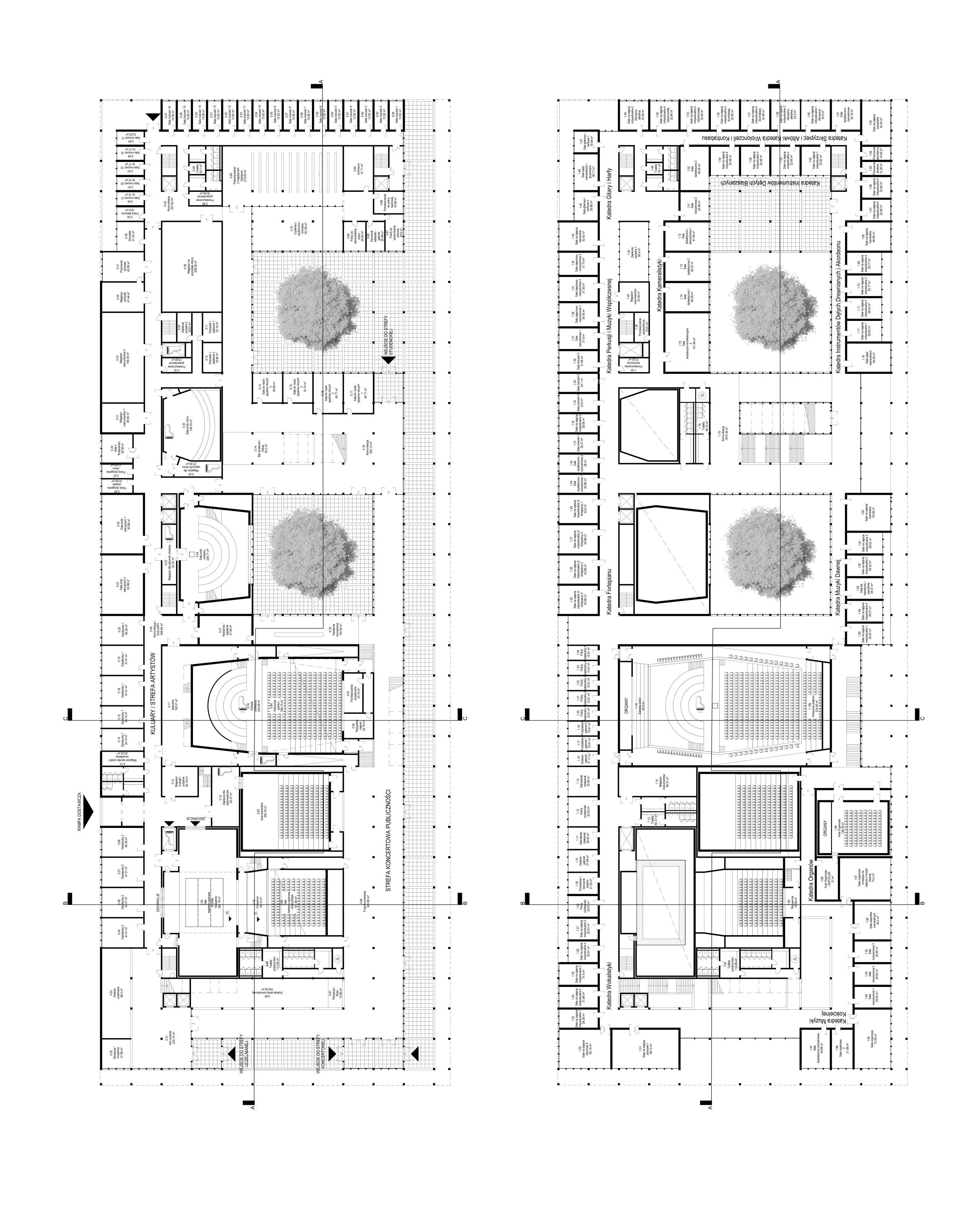
Nowa lokalizacja Akademii Muzycznej im. Krzysztofa Pendereckiego narzuca podobny tok myślenia, jak przy projekcie pawilonu i nie pozwala zignorować otoczenia Parku Grzegórzeckiego, pomników przyrody, sąsiedztwa Wisły i Bulwaru Kurlandzkiego, czy wreszcie, potencjału ekologicznego miejsca. Zdegradowana jeszcze przestrzeń dawnych koszarów, już dziś szumi opowieść o pięknym angielskim ogrodzie, ze starodrzewiem i nietuzinkowym obiektem Akademii, który z poszanowaniem wpisze się pomiędzy stare pnie i korony, tworząc przestrzeń dla uczelnianego życia i natury.
Na przekór pierwszym pomysłom, projekt ten nie próbuje nawiązać do historycznej zabudowy Krakowa (choć pewne paralele w nim się pojawiają), czy ikonicznej sylwety starego grodu majaczącej gdzieś w widokach północno-zachodnich. Idea całego założenia osadzona jest po prostu w… parku. W tym właśnie, lokalnym, jeszcze zaniedbanym parku, choć czysto teoretycznie, budynek mógłby powstać w dowolnym założeniu ogrodowym i zapewne jego zdyscyplinowana struktura elastycznie dopasowałaby się do dowolnej lokalizacji. W pewnym sensie, pod względem kontekstu, obiekt jest wręcz introwertyczny. Harmonizuje się z najbliższym otoczeniem, nie szuka odpowiedzi na pobliski urbanistyczny ład lub jego brak. Po prostu zatapia się w zielonej, miejskiej oazie w pobliżu Wisły.
Swą dyskretną obecnością udowadnia, że miasto może scalić się z naturą w sposób modelowy, bez zgrzytów, miękko i z szacunkiem. Dlatego też nowa siedziba Akademii ma tylko 3 kondygnacje wysokości. Większość drzew jest od niej wyższa, a wszelkie kadry, czy otwarcia zawsze odnajdują ludzką skalę. Modularna struktura budynku jest ażurowa, nie zamyka się, wręcz przeciwnie meandruje pomiędzy drzewami otaczając szeroką, otwartą przestrzenią dwa pomniki przyrody.
Ponad 23-metrowe jesiony górują nad dachem budynku roztaczają życiodajny cień w patiach, w których najmniejszy wymiar to 24m x 24 m w parterze, na kolejnych kondygnacjach przestrzeń ta jeszcze bardziej się otwiera i zaprasza na kolejny poziom, jakim jest dach. Stąd pomiędzy koronami drzew, dostrzec można Wisłę, czy panoramę Krakowa. W nowej Akademii znajdziecie nieskończoną ilość nietuzinkowych, intymnych kadrów, miejsc kontemplacji, spokoju, ale także tętniących muzycznym, studenckim życiem przestrzeni, gdzie wnętrza i zewnętrza łączą się w łagodnej symbiozie natury i cywilizacji.
akademia muzyczna
“Pawilon w parku” to hasło przywołujące mnogość odniesień w historii architektury. Phillip Johnson, wyznaczył niegdyś klarowny kierunek i jego Glass House stał się archetypem tego typu założeń, choć oczywiście dzieje pawilonowych założeń sięgają dużo dalej, aniżeli połowy XX wieku. Wydaje się jednak, że od czasów realizacji Johnsona, niemal każdy architekt (od studenta po profesora), w głębi duszy, pielęgnuje marzenie o idealnym, położonym pośród natury, obiekcie. Pokusa jest niebywała, za każdym razem, gdy otoczenie podszeptuje ten wrażliwy i subtelny, zielony kierunek…

adres:
chłopickiego 7/9 lok.62
04-314 warszawa
polska
kontakt:
+48 22 879 93 05 wew. 101
biuro@plus3architekci.pl
nip: 113-21-69-794
nieustannie poszukujemy osób twórczych i chcących do nas dołączyć,
zainteresowanych zapraszamy do kontaktu:
praca@plus3architekci.pl