
aula miejska
- typ projektu: kultura
- funkcja: kultura
- lokalizacja: rzeszów
- rok: 2023
- konkursy: SARP
- powierzchnia: 2 250 m2
o projekcie
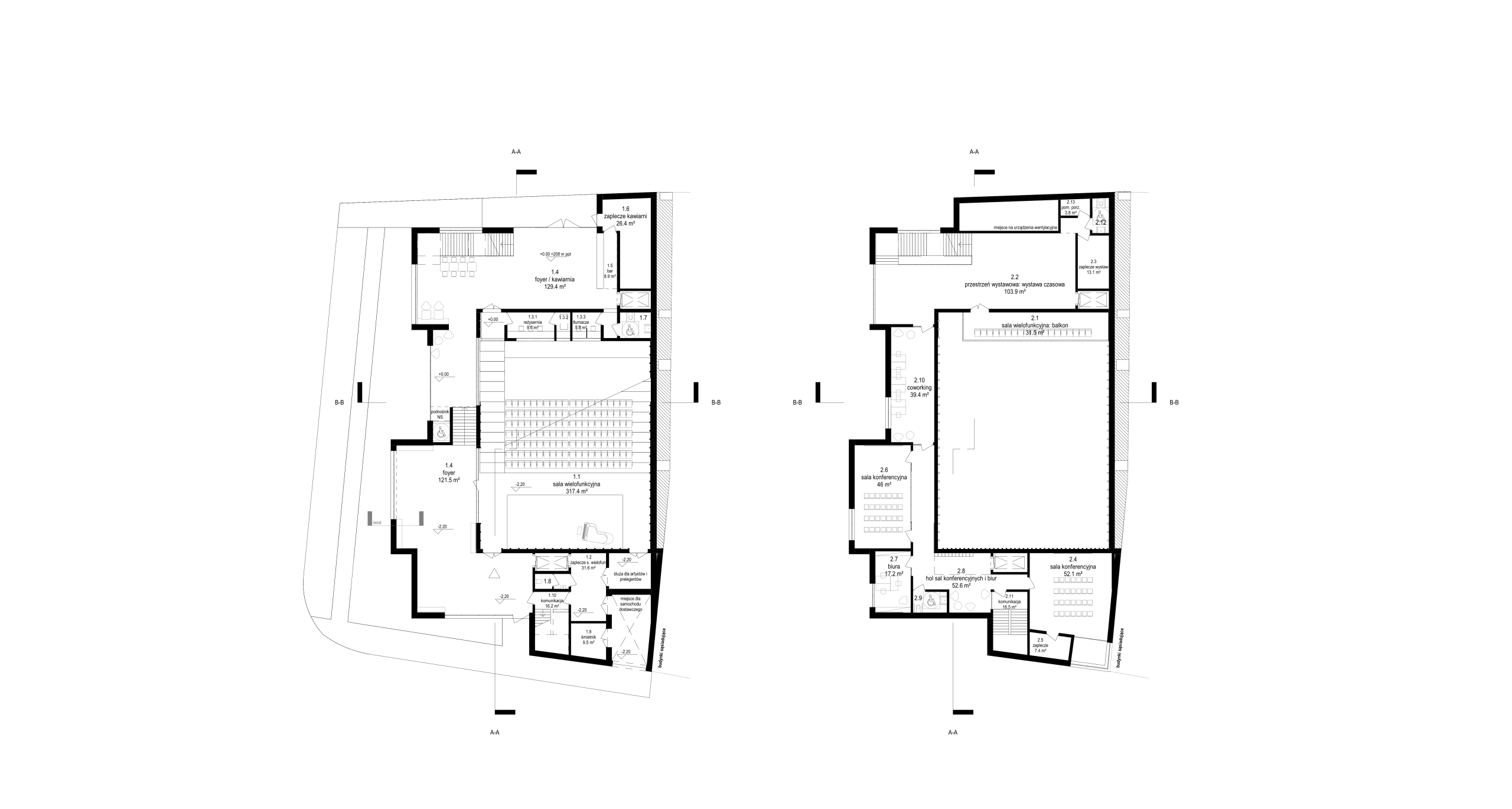
Projekt miejskiej auli w Rzeszowie powstał z poszanowaniem kontekstu Starego Miasta i dążeniem do stworzenia formy szczerej, osadzonej w lokalnym genius loci. Bryła budynku została rozdrobniona i „skruszona”, by wpisać się w skalę i rytm okolicznych kamienic, a jej kompozycja zróżnicowanych dachów i wysunięć nawiązuje do historycznej zabudowy Rynku. Centralne pudło akustyczne auli otoczono zespołem mniejszych form przypominających miejskie kamieniczki, co oswaja skalę obiektu i umożliwia zachowanie istniejących drzew. Od strony Ratusza budynek ustępuje przestrzeni, tworząc taras – „miejski balkon” z widokiem na Rynek, stanowiący naturalne dopełnienie miejskiej kompozycji.
Układ funkcjonalny oparto na dwóch poziomach terenu – aula z foyer stanowi centralny punkt, wokół którego rozmieszczono kawiarnię, przestrzenie wystawowe, sale konferencyjne i strefy coworkingu. Przestrzenie publiczne łączą się płynnie, tworząc wewnętrzne „miasteczko” z zaułkami i wnękami sprzyjającymi spotkaniom i rekreacji.
Architektura budynku, wykończona w szlachetnych tynkach i naturalnych materiałach, łączy współczesną formę z delikatnym odniesieniem do historycznego kontekstu, stając się harmonijnym, funkcjonalnym i przyjaznym fragmentem miejskiej tkanki.
aula miejska
“Sztuka nie jest zdobieniem przestrzeni. Jest wypełnianiem próżni, czyli zdobywaniem wolności, nasycaniem życiem tego, co martwe i obce. Martwe jest niezamalowane płótno i martwa jest przestrzeń bez przedmiotów […]”
Józef Szajna, wybrane z rozdziału: Myśli Różne w publikacji “Szajna Galeria”, Wydawnictwo Teatru im. Wandy Siemaszkowej, 1997


adres:
chłopickiego 7/9 lok.62
04-314 warszawa
polska
kontakt:
+48 22 879 93 05 wew. 101
biuro@plus3architekci.pl
nip: 113-21-69-794
nieustannie poszukujemy osób twórczych i chcących do nas dołączyć,
zainteresowanych zapraszamy do kontaktu:
praca@plus3architekci.pl