
szkoła podstawowa
- typ projektu: użyteczność publiczna
- funkcja: edukacja
- lokalizacja: genewa , ch
- rok: 2023
- inwestor: miasto Genewa
- konkursy: SIA
o projekcie
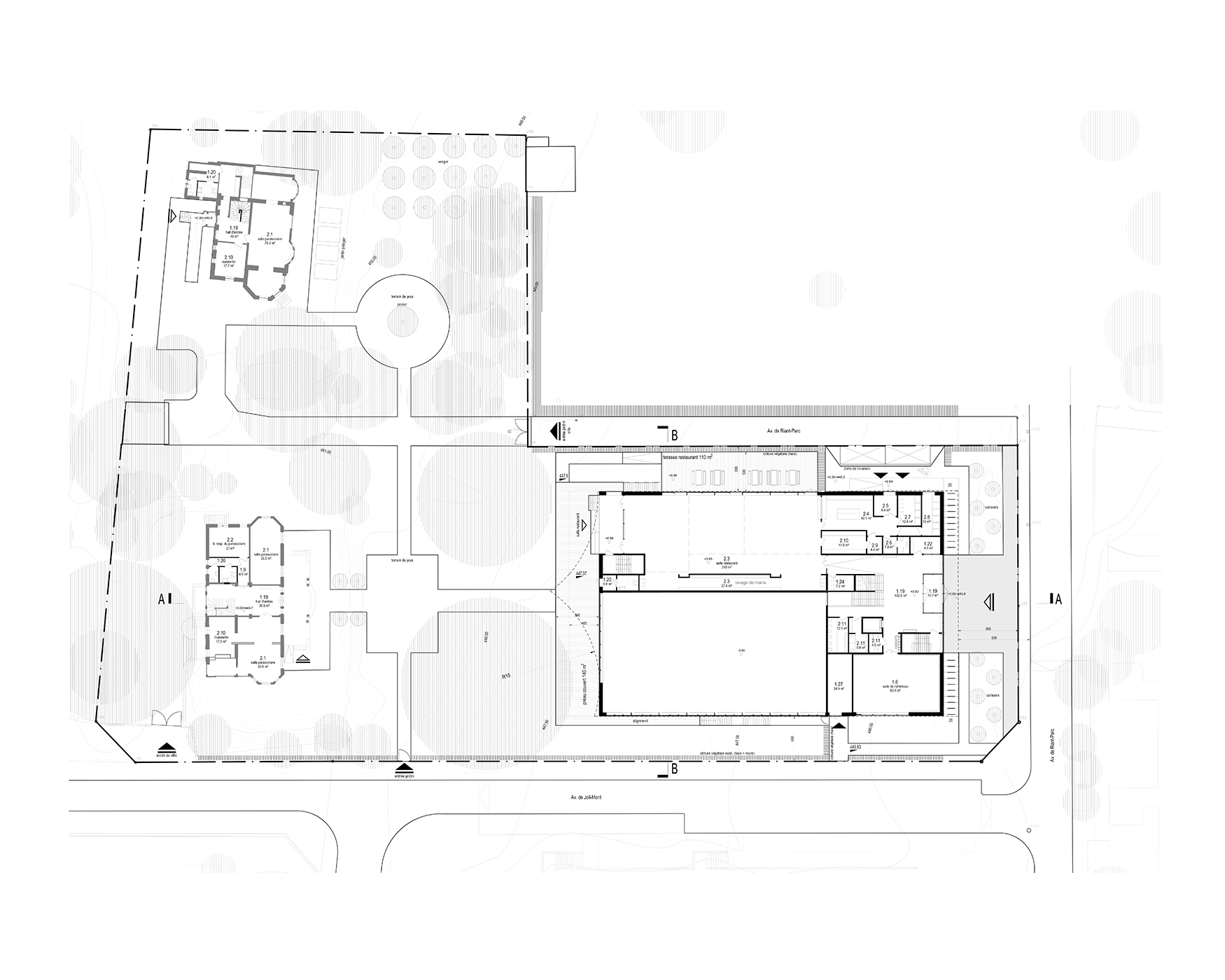
W obliczu coraz bardziej zurbanizowanego krajobrazu dzielnicy, charakteryzującego się znacznym zagęszczeniem zabudowy, nowa grupa szkół Mervelet będzie korzystać z wyjątkowego terenu - zielonego i porośniętego drzewami.
Na działce trwa nieustanna zabawa światła i cienia. Słońce co i rusz wkrada się pomiędzy XIX-wille, aby za chwilę przegrać z rozłożystymi koronami starych drzew. Najwięcej swobody gorące światło ma w części południowej działki, gdzie niegdyś był sad, a dziś stanął nowy budynek.
Jednak nowy obiekt nie poddaje się szantażowi natrętnych promieni. Niczym drzewa swe gałęzie, rozpościera on wokół fasad system kładek, schodów, tarasów i głębokich loggi, które oprócz funkcji zakrytego dziedzińca szkolnego (préau) stanowią doskonałą ochronę przed przegrzewaniem się elewacji i wnętrz, niezależnie od faktu, iż okna wyposażono w zewnętrzne rolety przeciwsłoneczne.
Oasis otrzymała swój przydomek nie bez powodu. Jest przecież oazą cienia w upalne, letnie dni. Oazą ciepła, gdy w chłodną porę roku słońce wślizguje się w głąb balkonów sprawiając, iż zewnętrzna przestrzeń rekreacji jest przyjemna i jasna. Duże okna klas szkolnych, niczym gąbka, chłoną wówczas każdy ciepły promień. Jak w każdej oazie, bije w niej również źródło - źródło wiedzy.
Na ograniczonym terenie wyznaczonym przez linie zabudowy (alignement) Oasis wykorzystuje każdą możliwą przestrzeń by precyzyjny schemat funkcjonalny wpisać w równie zdyscyplinowaną bryłę. Stąd budynek przyjmuje najefektywniejszą pod względem ekonomicznym, energetycznym i organizacyjnym prostopadłościenną formę. Główne wejście, usytuowane centralnie w elewacji od avenue de Riant-Parc, jest wyeksponowane i czytelne w skali dzielnicy. Wygospodarowano tu niewielki miejski plac, który obsadzono symetrycznie, drobnymi wiśniami japońskimi niejako dla wspomnienia starego sadu, ale przede wszystkim dla ich pięknego zapachu, kiedy na wiosnę obsypią się różowawym, delikatnym kwiatem.
Pozostała część terenu jest wydzielona i stanowi bezpieczną oazę dziecięcych gier i zabaw na świeżym powietrzu. Ponieważ w zabytkowych willach będą odbywać się zajęcia pozaszkolne (parascolaire) oraz zostaną one udostępnione mieszkańcom dzielnicy, dlatego do starego ogrodu, przewidziano dodatkowe wejścia: od strony południowo-zachodniej i wschodniej (poprzez służebność). Zielony teren, w którym królują dwa ogromne cedry jest ściśle powiązany nie tylko z XIX-wieczną zabudową, ale przede wszystkim tworzy liczne synergie z nowym budynkiem. Z każdego poziomu okalających bryłę balkonów można dostać się bezpośrednio do szkolnego parku zbiegając po zewnętrznych schodach.
Umieszczona na parterze wielofunkcyjna stołówka - serce codziennego życia szkolnego, otwiera się na przestrzeń ogrodu dzięki zadaszonym tarasom, które w letnie dni będą tętniły życiem. Pomiędzy willą Joli-Mont, a nowo-projektowanym budynkiem przewidziano symetrycznie usytuowany, obsadzony rajskimi jabłoniami, placyk do gier i zabaw. System prostych ścieżek, rozmieszczonych osiowo względem willi podkreśla powiązanie urbanistyczne pomiędzy starym i nowym. Dopełnieniem tego dialogu jest obszerny préau, którego dach zawadiacko unosi się w kierunku willi, machając jej spomiędzy cedrowych, ciężkich gałęzi. Przed willą Riant-Parc, w nasłonecznionej części ogrodu wygospodarowano okrągły plac zabaw, pośrodku którego zasadzono gruszę. Za kilka, kilkanaście lat jej owoce będą stanowiły słodki przysmak dla uczniów i innych korzystających z tego ogrodu. Nie będą to jedyne owoce, które dojrzeją w szkolnym sadzie. W południowo-wschodnim, nasłonecznionym, narożniku działki Riant-Parc posadzono kilka moreli i śliw. Poza tym w ogrodzie wygospodarowano miejsce na kilka grządek wykorzystywanych w celach edukacyjnych, a pachnącymi ziołami uzupełniono niemal każdy skąpany w słońcu fragment zieleni.
szkoła podstawowa
W obliczu coraz bardziej zurbanizowanego krajobrazu dzielnicy, charakteryzującego się znacznym zagęszczeniem zabudowy, nowa grupa szkół Mervelet będzie korzystać z wyjątkowego terenu - zielonego i porośniętego drzewami.

adres:
chłopickiego 7/9 lok.62
04-314 warszawa
polska
kontakt:
+48 22 879 93 05 wew. 101
biuro@plus3architekci.pl
nip: 113-21-69-794
nieustannie poszukujemy osób twórczych i chcących do nas dołączyć,
zainteresowanych zapraszamy do kontaktu:
praca@plus3architekci.pl