
habitat wilanów
- project type: residential
- function: multi-family housing
- location: warszawa
- year: 2022
- investor: CITYHOMES
- area: 4 700 m2
- number of apartments: 18
about project
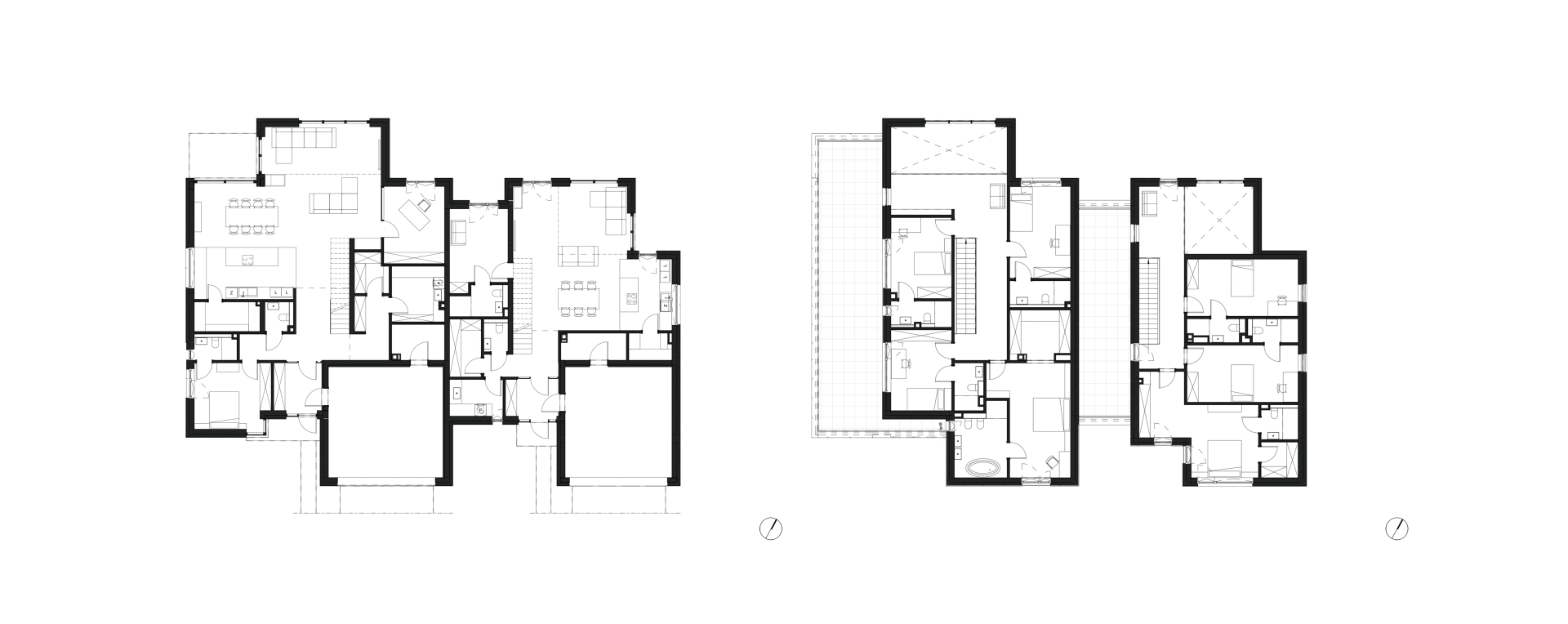
Habitat Wilanów is an intimate estate of single-family houses located in the green, villa district of Warsaw’s Wilanów, in Zawady. The aim of the project was to create architecture that harmoniously integrates with the natural landscape and the local urban context. The houses, with a modern yet understated form, draw on the traditional archetype of the barn – a familiar and well-known shape, reinterpreted with attention to detail, proportions, and noble materials.
The complex is distinguished by its compositional coherence and architectural elegance. The interiors – ranging from 234 to 322 m² – were designed with everyday comfort in mind. Generous spaces, including double-height living rooms, provide a sense of openness and natural light that changes throughout the day and across the seasons, entering into dialogue with the surrounding greenery.
As part of the development, we also designed the interior of one of the houses, showcasing how material and formal consistency flows seamlessly from the external architecture into the private world of its residents.
habitat wilanów
Houses with a modern yet subdued form draw on the traditional archetype of the barn - a familiar and well-known shape, reinterpreted with attention to detail, proportions, and noble materials.Houses with a modern yet subdued form draw on the traditional archetype of the barn, a familiar and well-known shape, reinterpreted with attention to detail, proportions, and noble materials.

address:
chłopickiego 7/9 lok.62
04-314 warszawa
polska
contact:
+48 22 879 93 05 wew. 101
biuro@plus3architekci.pl
nip: 113-21-69794
We are constantly looking for creative people who would like to join us.
If you are interested, please contact us at:
praca@plus3architekci.pl