green primary eco-school
- project type: public utilities
- function: education
- location: Warszawa
- year: 2024
- investor: Miasto Stołeczne Warszawa
- awards: mention
- competitions: SARP
- area: 13 628 m2
about the project
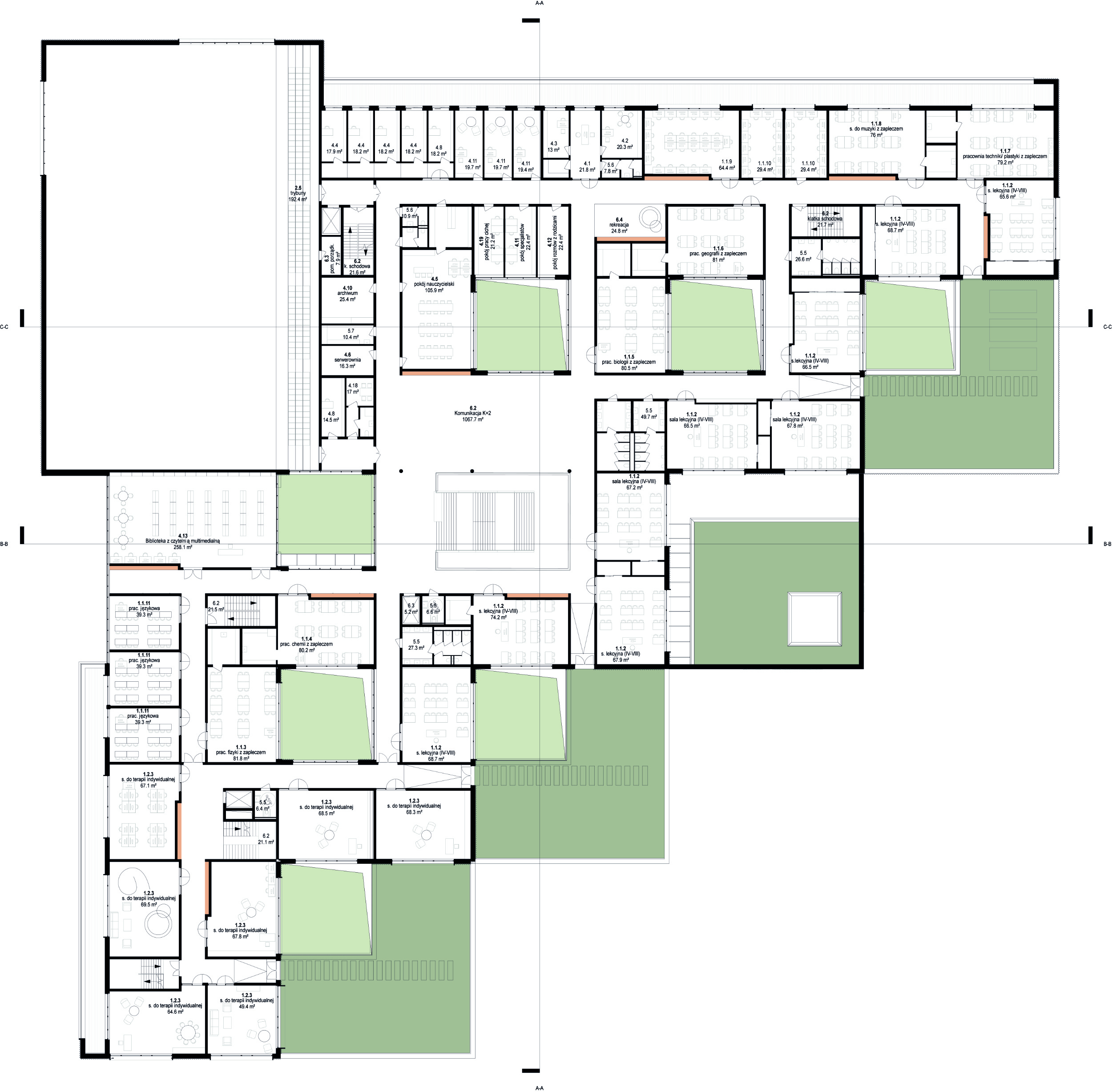
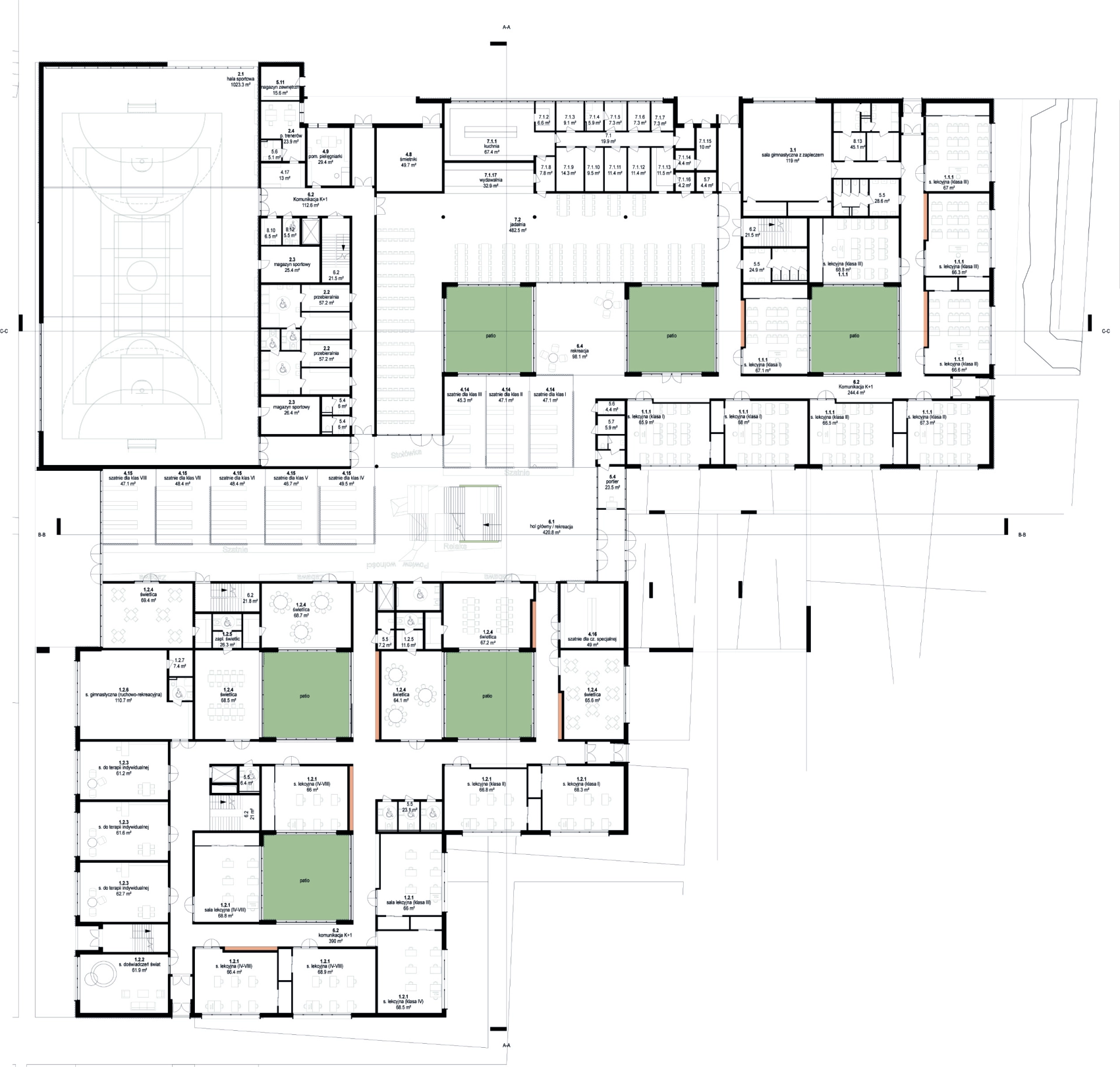
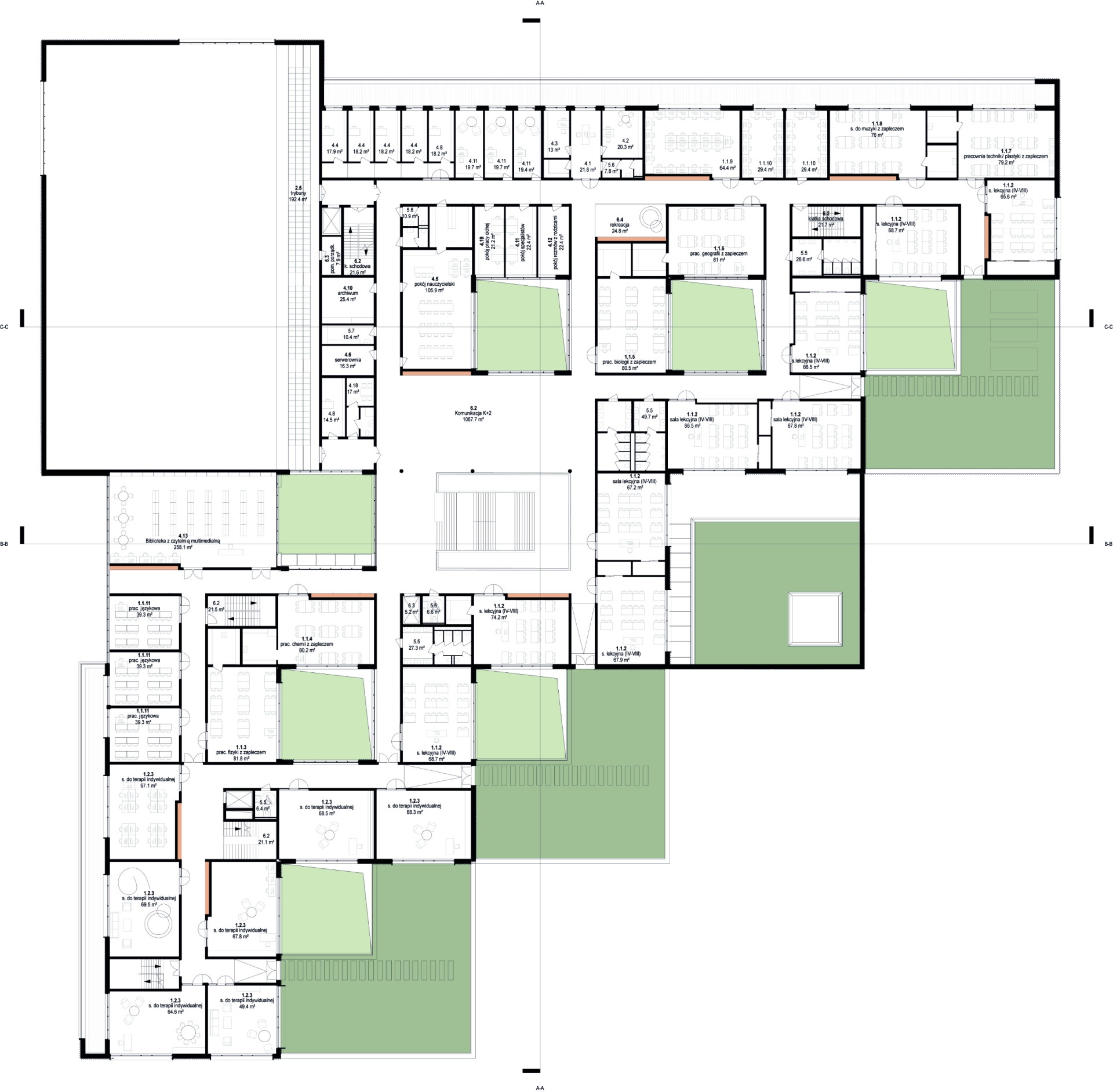
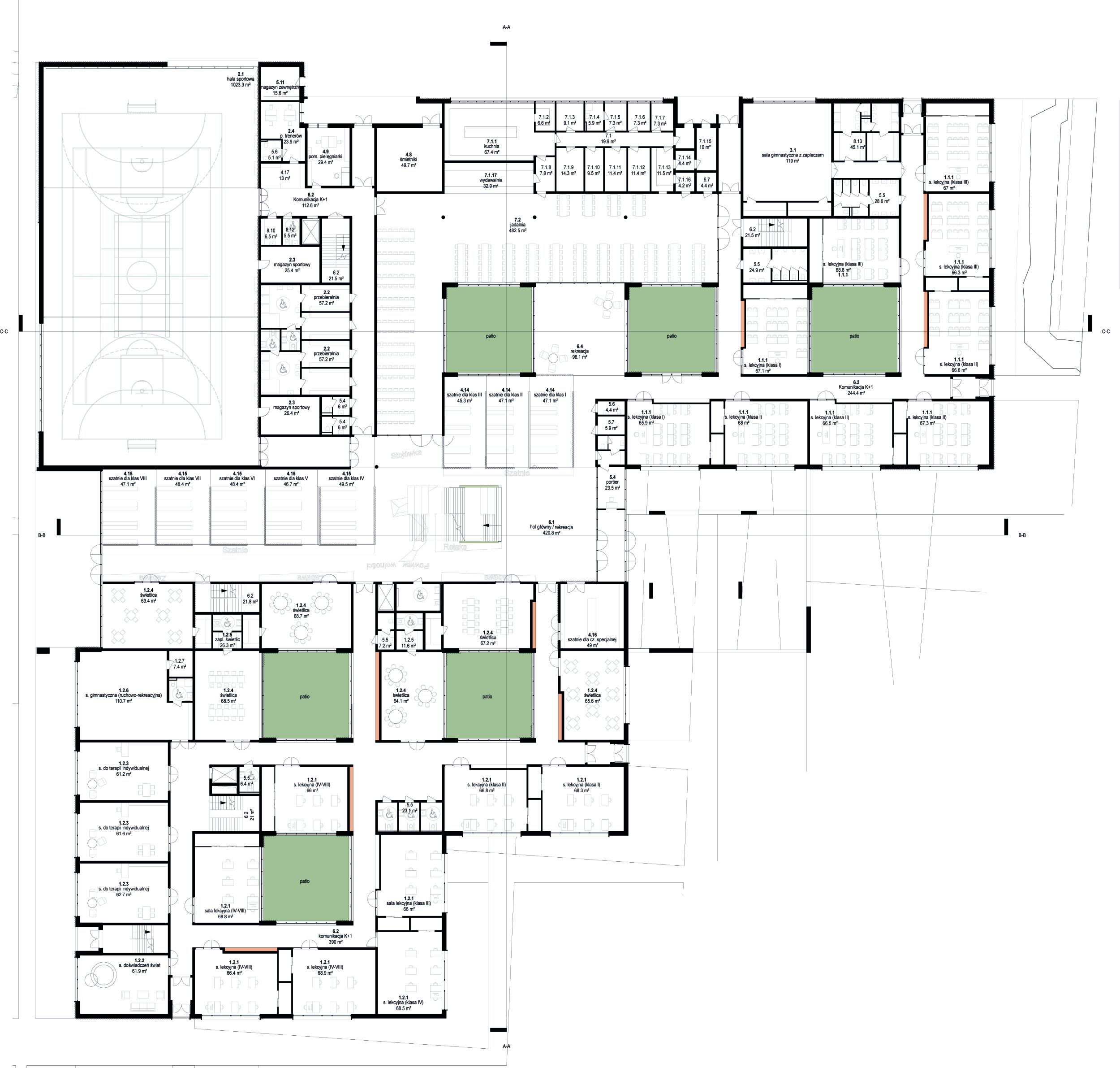
The urban concept of the school involves creating a space resembling an educational village, where the modular layout of the buildings ensures intimacy despite the large scale of the project. The cascading structure, composed of equal modules like blocks, creates a friendly and child-friendly pavilion layout with terraces, patios and educational gardens.
The architecture, devoid of monumentalism, promotes integration, safety and spatial orientation, while at the same time fitting in with the arched course of Kartograficzna Street, organising the surroundings and emphasising the open character of the school.
The interior is organised around a spacious, light-filled hall - the heart of school life, connecting the teaching, recreation and sports areas. The individual modules correspond to the stages of education - from the special section, through the younger classes, to the older ones - which promotes integration and community building.
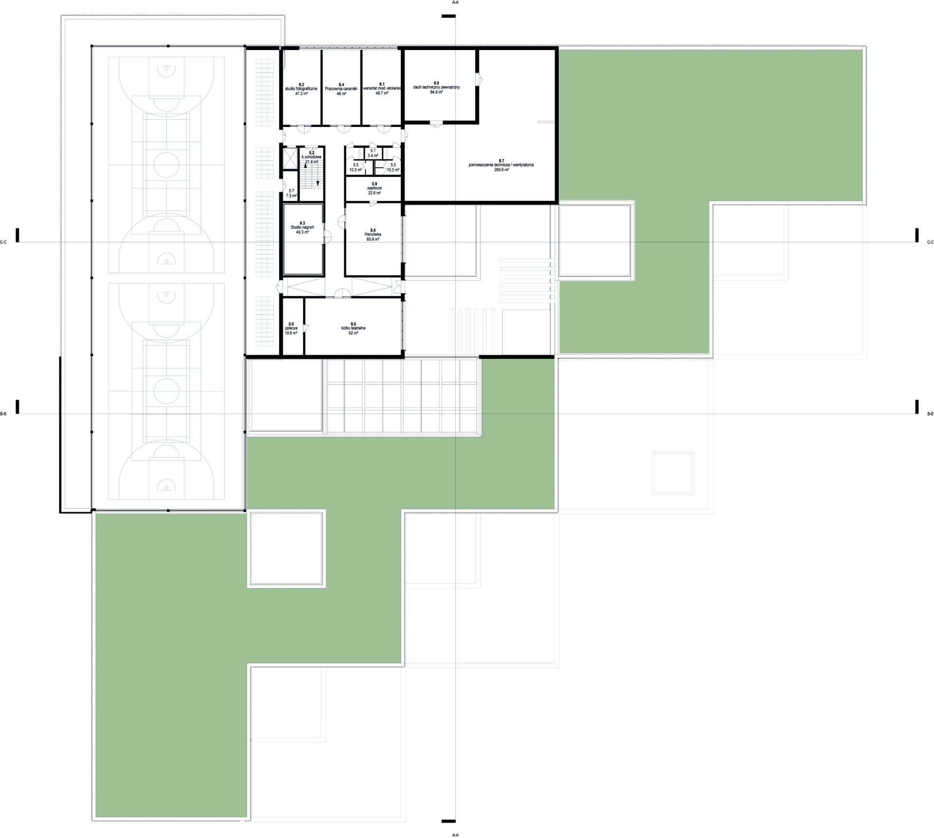
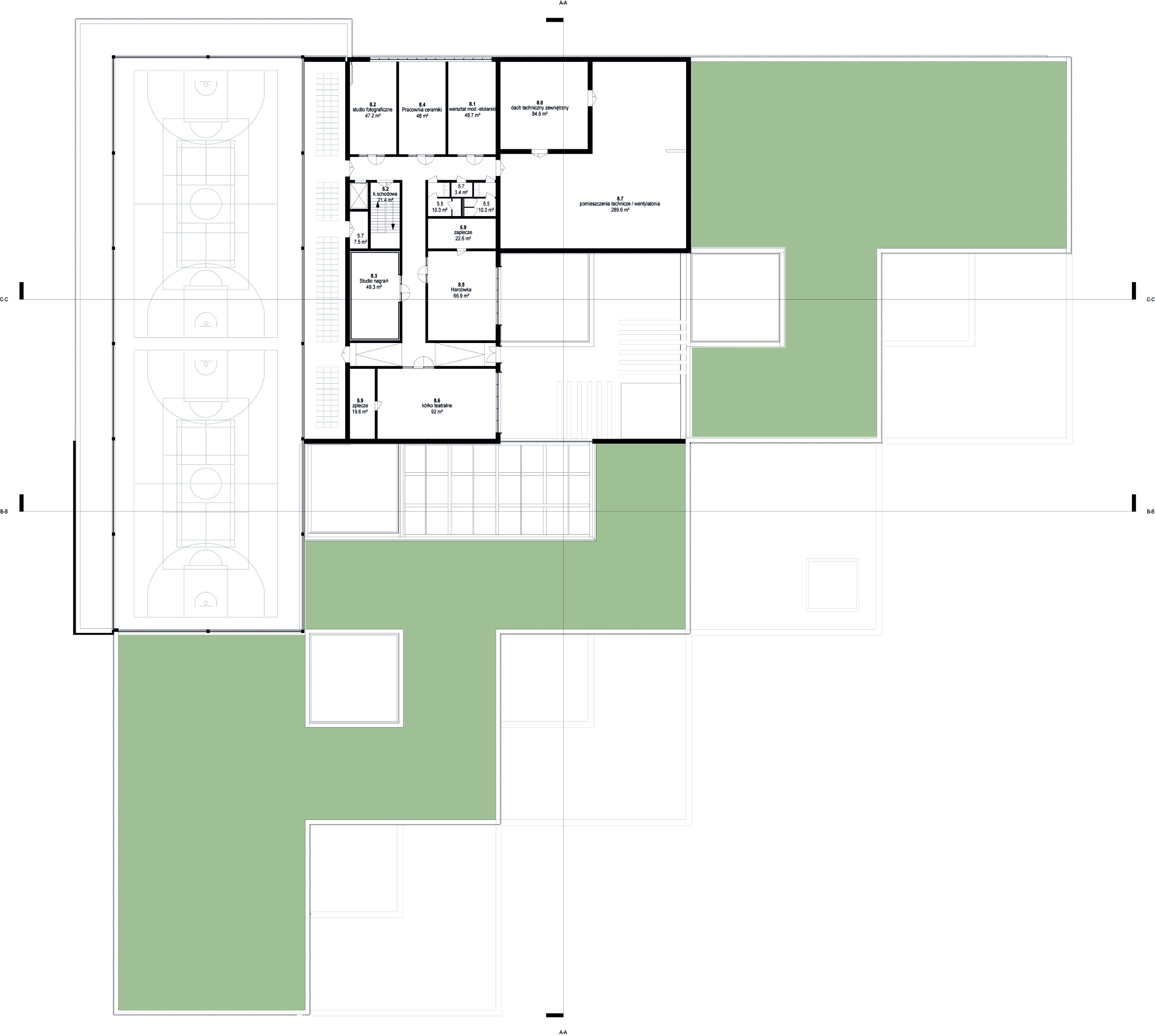
Gardens, sports fields and relaxation areas have been designed on the roofs, so that each floor has contact with nature.
The materials used - green sheet metal and coloured concrete - emphasise the ecological and modern character of the building, while the green roofs and photovoltaic installations reinforce its pro-ecological dimension.
green primary eco-school
"Nature is the best teacher"
address:
chłopickiego 7/9 lok.62
04-314 warszawa
polska
contact:
+48 22 879 93 05 wew. 101
biuro@plus3architekci.pl
nip: 113-21-69-794
We are constantly looking for creative people who would like to join us.
If you are interested, please contact us at:
praca@plus3architekci.pl