
cultural center
- project type: culture
- function: culture
- location: warszawa
- year: 2022
- awards: 3rd prize
- area: 2 900 m2
about the project
The new Wesoła district-based investment will stand out with its timeless architecture and noble facade materials. In a multi-threaded and not always organized neighborhood, a bright, brick building with wooden elements of pergola-style arcades will attract residents’ attention with its simple and neat form. The “special feature” of the building will probably be the scattered, playfully round windows, whose cheerful composition on the facades will give an individual touch to the interiors of both institutions.
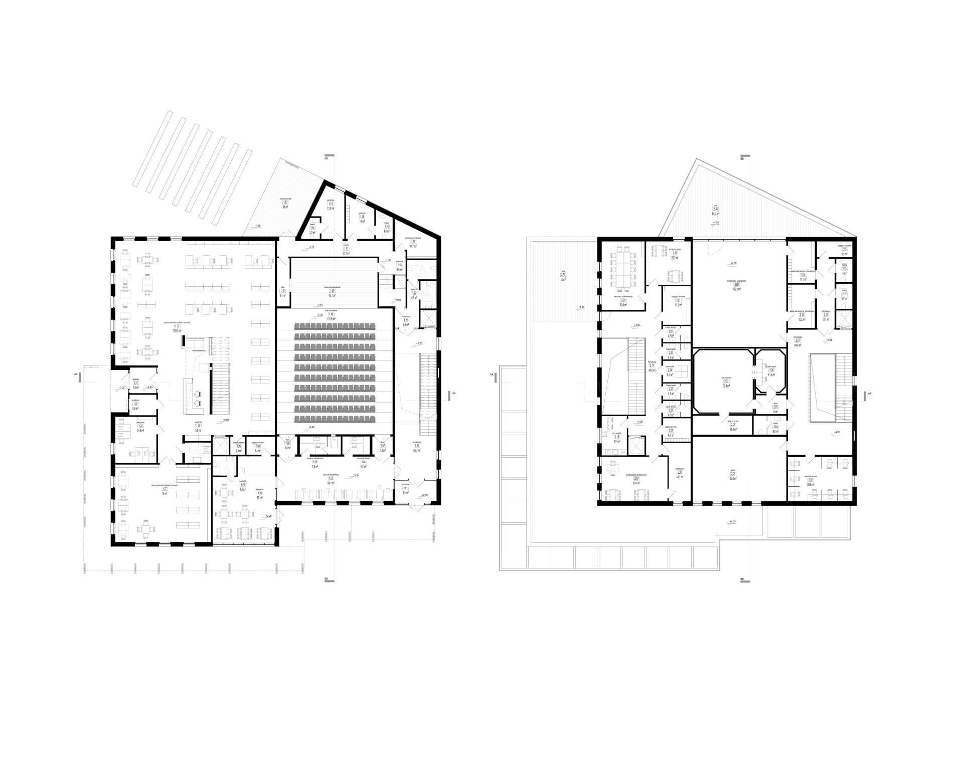
The headquarters of the two independent institutions are designed as an inclusive and open object for the local community, and the proposed architecture is a manifestation of this idea. The oak arcades, functionally linking the entrances to the library and cultural center, will buzz with life even beyond official working hours, thanks to the cafe that will stay open longer. In the summer, cafe customers will take refuge in the lively shade of the “pseudo-colonnade,” and will likely use the geometric garden of round hedges and dense turf. At the same time, in the rainy autumn, they will slip under the canopy from the library to the cultural center or vice versa.
The new building form refers to the lower school development in the urban context. The stepped shape of the building opens up a view of a majestic tree and recreational spaces in the northern part of the plot. The building’s withdrawal from the sports hall wall creates a friendly and inviting space. The entrance to the library is exposed and visible from the street. Also, events that will take place on the outdoor stage have clear access, directing viewers straight to the outdoor theater.
The southeast facade, parallel to the street, is dynamic and light-shaded thanks to the terraced modeling of the building and the continuation of the pergola, exposing the independent entrance to the cultural center.
On the other hand, the three-story elevation from the east is exposed from a great perspective, opens up to the school’s sports spaces, and is visible from the arc of Jan Pawła Street, and its scale corresponds to the rank of a local landmark, a reference point.
cultural center
“Let’s meet at the circles!” – the children will shout.

address:
chłopickiego 7/9 lok.62
04-314 warszawa
polska
contact:
+48 22 879 93 05 wew. 101
biuro@plus3architekci.pl
nip: 113-21-69-794
We are constantly looking for creative people who would like to join us.
If you are interested, please contact us at:
praca@plus3architekci.pl