
primary school
- project type: public utilities
- function: education
- location: genewa , ch
- year: 2023
- investor: miasto Genewa
- competitions: SIA
about the project
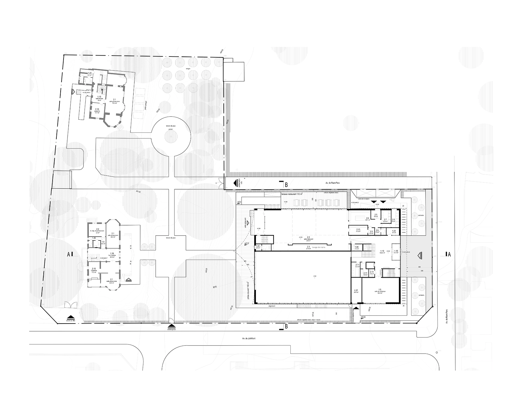
Faced with the increasingly urbanized landscape of the district, characterized by dense development, the new Mervelet school complex will enjoy a remarkable site - green and filled with trees.
On the plot, there is a constant interplay of light and shadow. The sun repeatedly sneaks between the 19th-century villas, only to be defeated moments later by the sprawling canopies of ancient trees. The southern part of the site, once an orchard and now home to the new building, offers the most freedom to the intense sunlight.
Yet, the new building resists the tyranny of these insistent rays. Like trees extending their branches, it unfurls around its façades a network of walkways, stairs, terraces, and deep loggias. These not only form a covered schoolyard (préau) but also provide excellent protection against the overheating of façades and interiors - despite the fact that the windows are equipped with external sunshades.
“Oasis” earned its name for good reason. It is, after all, a true oasis of shade during hot summer days, and an oasis of warmth when, in the colder months, sunlight seeps deep into the balconies, making the outdoor recreational space bright and pleasant. The large classroom windows, like sponges, soak up every warm ray. And as in every oasis, a spring flows here as well - a spring of knowledge.
Within the limited space defined by the building alignment, Oasis makes use of every possible square meter to fit a precise functional layout into an equally disciplined architectural form. The building thus adopts a rectangular shape - the most efficient in terms of economy, energy use, and organization. The main entrance, centrally located on the façade facing Avenue de Riant-Parc, is clearly marked and easily identifiable at the neighborhood scale. A small urban square was created here, symmetrically planted with Japanese cherry trees - a nod to the old orchard, but above all, for their beautiful fragrance when they bloom in delicate pink during spring.
The rest of the site is enclosed and serves as a safe haven for children's outdoor play and activities. Since the historic villas will host extracurricular programs (parascolaire) and be made accessible to local residents, additional entrances to the old garden have been planned - from the southwest and east, via easements. The green space, dominated by two majestic cedar trees, is not only closely linked to the 19th-century buildings but also forms a strong synergy with the new structure. From every level of the surrounding balconies, one can directly access the school park via exterior staircases.
The multifunctional cafeteria on the ground floor - the heart of everyday school life - opens onto the garden through covered terraces that will bustle with life during warmer days.
Between the Joli-Mont villa and the newly designed building, a symmetrically placed play area has been planned, planted with flowering crabapple trees. A simple system of paths, laid out axially in relation to the villa, reinforces the urban connection between old and new. This dialogue is further enriched by a generous préau, whose roof playfully lifts toward the villa, waving at it from behind the heavy cedar branches.
In the sunniest part of the garden, in front of the Riant-Parc villa, a round playground has been arranged, with a pear tree planted at its center. In a few years, or perhaps a decade, its fruit will become a sweet treat for pupils and others who use the garden. And they won't be the only fruits to ripen in the school’s orchard. In the southeast corner of the site - sunny and well-exposed - several apricot and plum trees have been planted. Additionally, part of the garden has been dedicated to educational vegetable beds, and nearly every sun-drenched patch of greenery has been enriched with fragrant herbs.
primary school
Faced with the increasingly urbanized landscape of the district, characterized by dense development, the new Mervelet school complex will enjoy a remarkable site - green and filled with trees.

address:
chłopickiego 7/9 lok.62
04-314 warszawa
polska
contact:
+48 22 879 93 05 wew. 101
biuro@plus3architekci.pl
nip: 113-21-69-794
We are constantly looking for creative people who would like to join us.
If you are interested, please contact us at:
praca@plus3architekci.pl