
new stage of the wanda siemaszkowa theatre
- project type: public utilities
- function: culture
- location: other cities in Poland
- year: 2022
- investor: teatr im. wandy siemaszkowej w rzeszowie
- area: 2 500 m2
about project
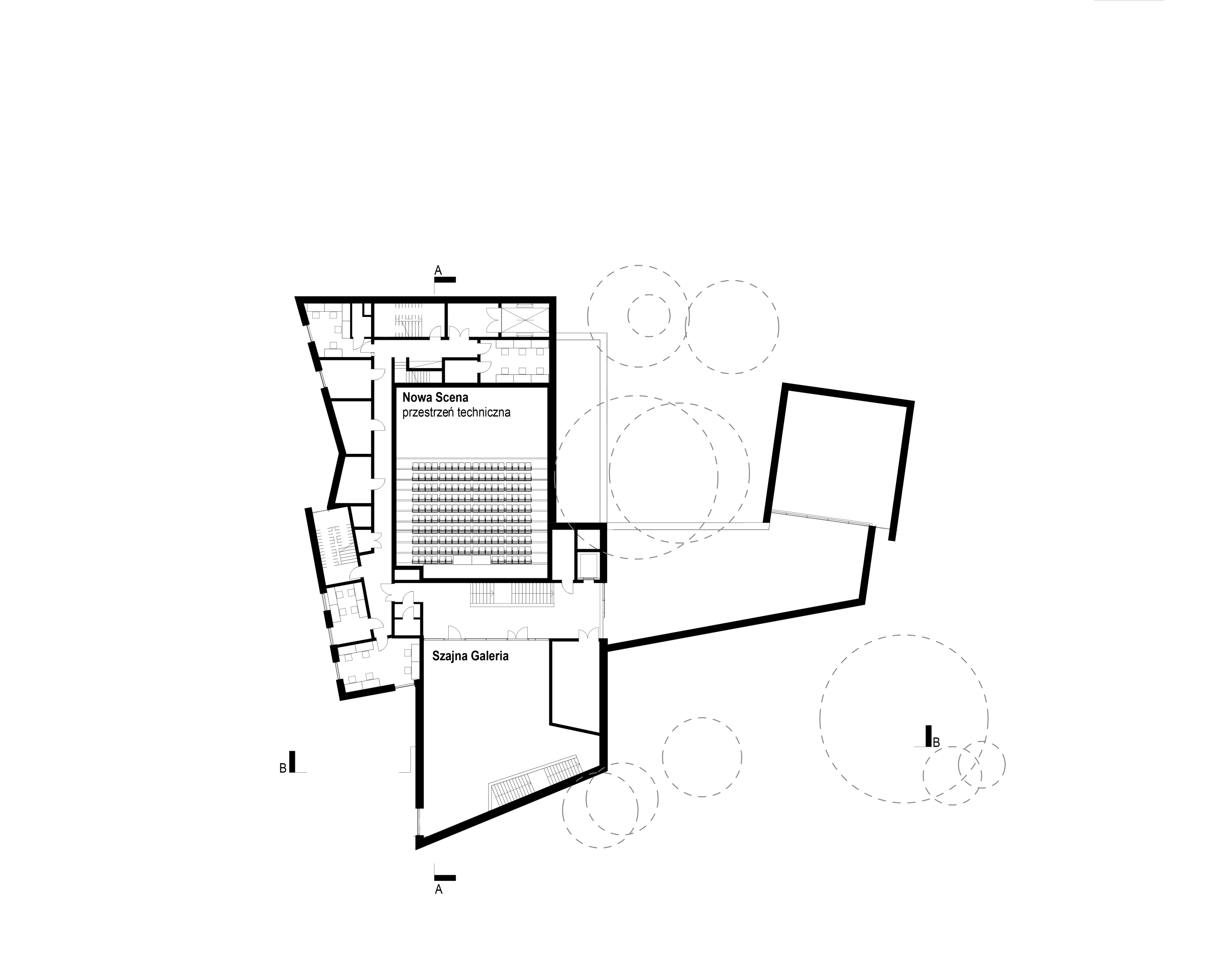
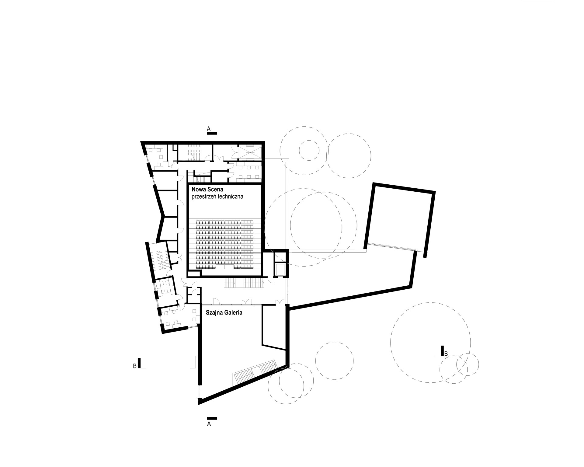
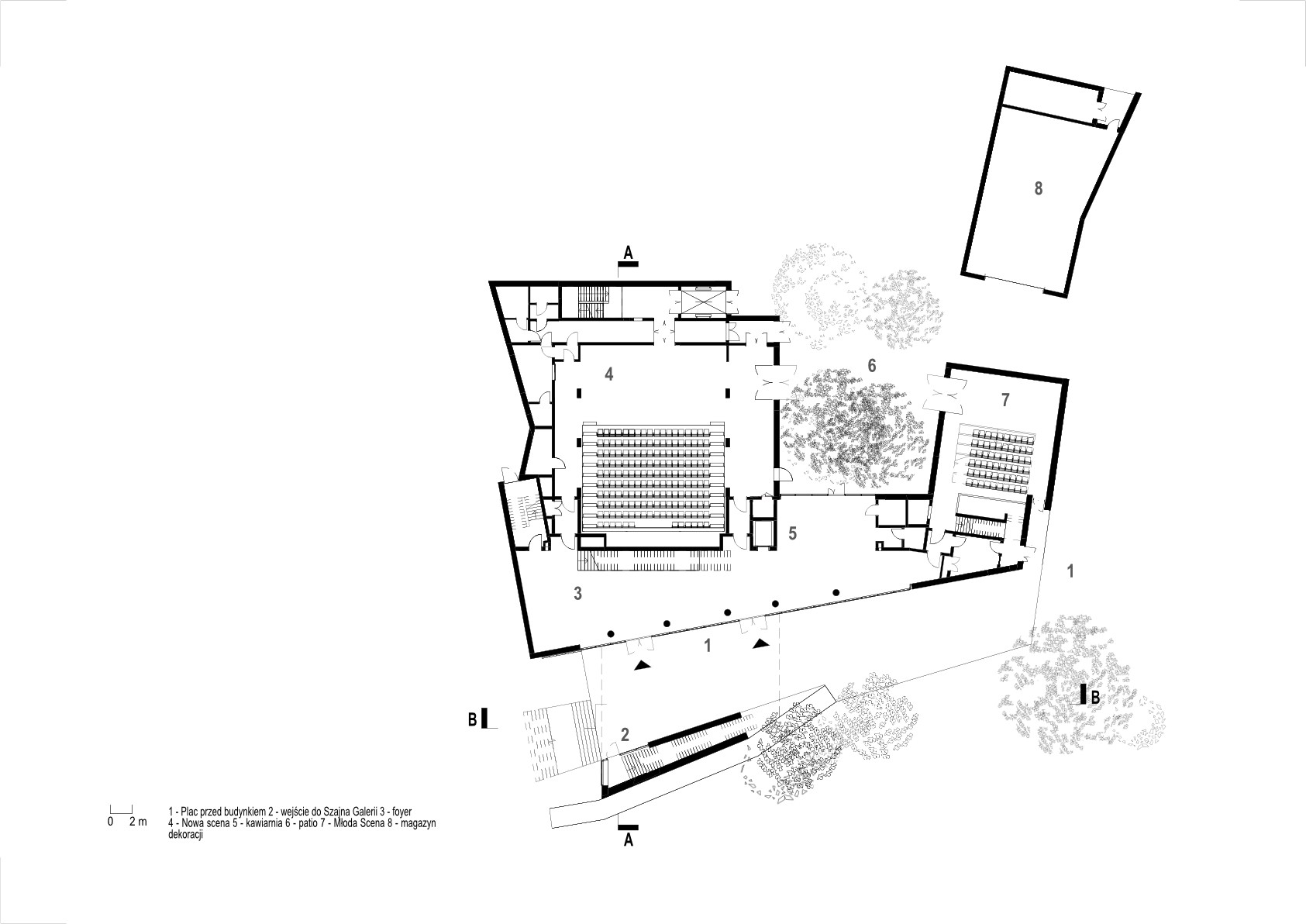
Nowa Scena is an independent building of the Wanda Siemaszkowa Theatre, located in the heart of Rzeszów along one of the city’s main arteries – Aleja Cieplińskiego. The facility will serve as a new part of the institution, operating alongside the historic theatre building on Sokoła Street. The primary goal was to expand the theatre’s functionality, increase accessibility, and create a modern space for presenting a variety of theatrical, educational, and exhibition formats.
The project required a tailored approach in terms of urban planning, structural design, and technology. The site is home to two centuries-old oaks – protected natural monuments – which have been fully preserved. The area is also densely covered with underground infrastructure, which necessitated raising part of the building above ground level. The main building mass was articulated and adapted to the irregular plot, while the entrance area was designed as an open square under a canopy, integrating the building with the city’s pedestrian flow.
The building includes:
- Two theatre halls: Nowa Scena (180 seats, black box) and Młoda Scena (60 seats), both with flexible arrangements;
- A spacious foyer with glazed views of the patio and preserved greenery, which can also function as an additional stage thanks to retractable curtains and appropriate technical equipment;
- A café, exhibition space, rehearsal room, dressing rooms, guest rooms, and administrative offices;
- Szajna Gallery – an independent art gallery suspended above the passage, dedicated to the work of Józef Szajna, with a separate entrance
Several eco-friendly solutions were implemented, including: rainwater roofs with a 40–50 cm retention layer, photovoltaic installations on technical roofs, and energy-efficient lighting systems.
new stage of the wanda siemaszkowa theatre
The main building mass was articulated and adapted to the irregular plot, while the entrance area was designed as an open square under a canopy, integrating the building with the city’s pedestrian flow.

address:
chłopickiego 7/9 lok.62
04-314 warszawa
polska
contact:
+48 22 879 93 05 wew. 101
biuro@plus3architekci.pl
nip: 113-21-69794
We are constantly looking for creative people who would like to join us.
If you are interested, please contact us at:
praca@plus3architekci.pl