
Teatr Lalek Banialuka
- project type: public utilities
- function: culture
- location: other cities in Poland
- year: 2023
about project
The Banialuka Puppet Theatre and the Municipal Library are important landmarks on the cultural map of Bielsko-Biała and institutions with a long history, whose new chapter is to unfold in its new home on Broniewskiego Street. A facility with such a unique function, capable of becoming a city landmark and aimed at a specific user group – children – should be both modern and friendly, accessible, and sustainable.
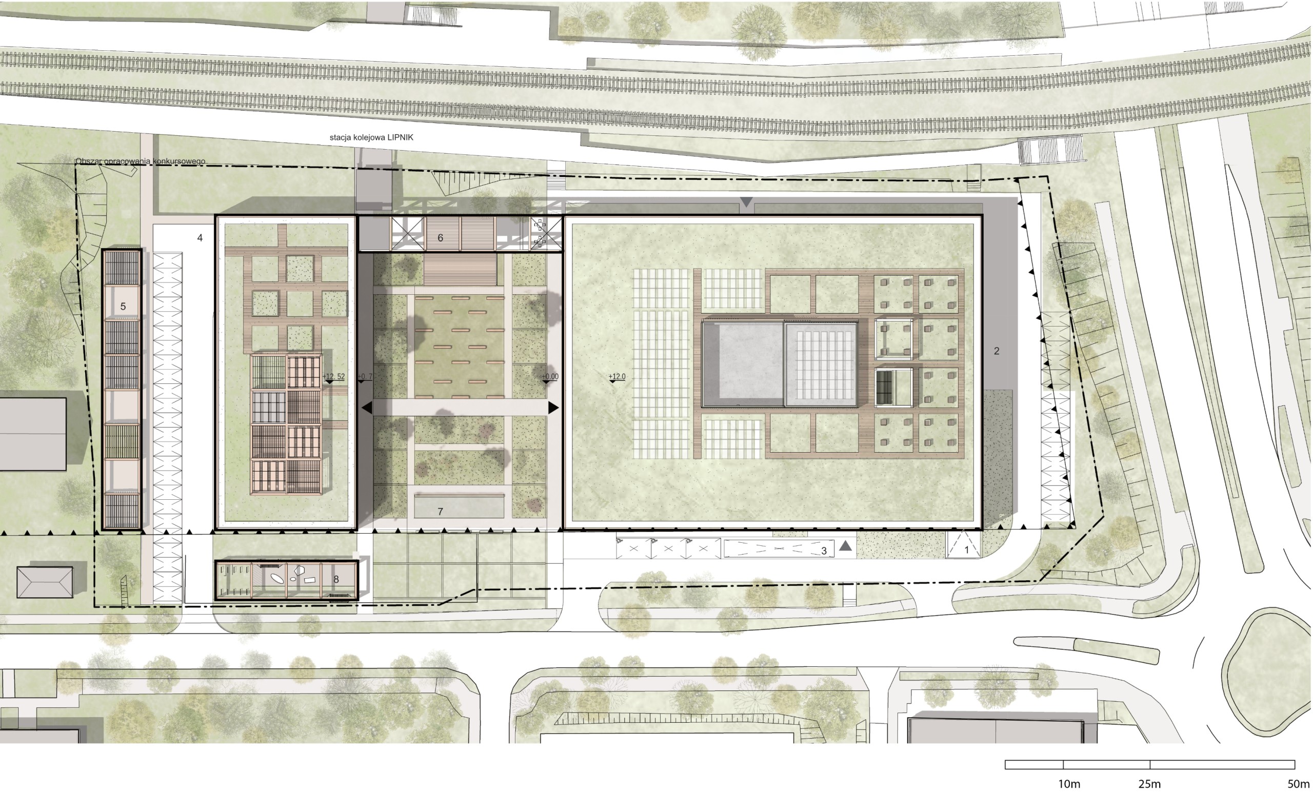
A challenge in creating a complex of two cultural institutions is the multitude of functions that must be considered in and around the buildings. To ensure clarity, keep the scale of the buildings as small as possible, and create multiple spaces with different purposes and character, a decision was made to design two separate buildings. However, they form a whole thanks to a common principle – a regular structure of laminated timber, whose structural grid, based on a 6 x 6 meter module, determines the rhythm and organization of both the volumes, the facades, and even the landscaping elements. The facade composition takes the order of the wooden structure as its starting point, but is enriched by its filling. Sometimes it is the emptiness of the loggia, sometimes the glazing of the foyer, sometimes a solid wall finished with wood, and sometimes sliding blinds. The whole creates a dynamic yet harmonious mosaic inscribed in a grid of columns and beams. Location and urban planning. The specific location of the facility poses challenges, but also offers certain opportunities. The immediate vicinity of the Lipnik railway station is, on the one hand, a nuisance, but on the other, an opportunity to reach the Theatre and Library by public transport, forgoing the car. Therefore, the creation of a path along the axis of the existing underpass beneath the station was crucial for the urban planning. This also helps maintain and enhance the pedestrian connection between the two residential estates separated by the tracks. The entrance square was deliberately located deep within the layout, away from the nearby viaduct and roundabout. Bounded on two sides by the facades of the Library and Theater, it is separated from the tracks by a continuation of the wooden structure housing the covered summer stage. This intimate interior is filled with intense greenery – medium-height, high, and low – and there is also plenty of water. The square's two main axes are a wide path connecting the main entrances to the buildings and an axis running from the center of the stage to the perpendicular street. The summer stage audience area is designed as a multi-purpose area – sown with grass instead of paving, and in the summer months, in addition to benches, it may be equipped with deckchairs or even blankets.
Teatr Lalek Banialuka
The facade's composition takes the order of the wooden structure as its starting point, but is enriched by its infill. At times, it's the emptiness of the loggia, at others, the glazing of the foyer, at others, a solid wall finished with wood, and at others, sliding blinds – the whole creates a dynamic yet harmonious mosaic embedded in a grid of columns and beams.

address:
chłopickiego 7/9 lok.62
04-314 warszawa
polska
contact:
+48 22 879 93 05 wew. 101
biuro@plus3architekci.pl
nip: 113-21-69794
We are constantly looking for creative people who would like to join us.
If you are interested, please contact us at:
praca@plus3architekci.pl